vendita porzione di casa indipendente con giardino a Montegabbione

vendita porzione di casa indipendente con giardino a Montegabbione

Nel comune di Montegabbione, a pochi passi dal centro, porzione di casa indipendente di circa 200 mq con giardino privato, terrazzo e corte comune completamente recintata.

Composizione

La proprietà si sviluppa su più livelli.

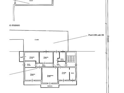
Al primo piano troviamo l’appartamento di 130 mq accessibile sia da ingresso condominiale che da ingresso indipendente. E’ composto da un ingresso, la sala da pranzo con camino e balcone, cucinotto, spazioso salone anch’esso con balcone, tre camere matrimoniali, due delle quali dotate di balcone e due bagni; 

Al piano superiore troviamo una soffitta, parzialmente praticabile, ideale come ripostiglio o per future personalizzazioni.

Al piano terra si trova un comodo garage di circa 30 mq, una cantina di 35 mq e un grande salone rustico, completamente ristrutturato, dotato di cucina, camino e bagno.

La proprietà è arricchita da una corte circostante completamente recintata e illuminata, in comune a tutte le unità abitative, oltre ad un terrazzo vivibile, un giardino privato e un orto.

Stato e finiture

L’immobile, pronto da abitare, è in buone condizioni. 
Il riscaldamento è autonomo a metano. 


158.000,00 €

  • Property ID: IO430
  • Prezzo: 158.000,00 €
  • Regione: Umbria
  • Provincia: Terni
  • Comune: Montegabbione
  • Tipologia: Vendita
  • Categoria: Appartamenti
  • Camere: 3
  • Stato: Buono/Abitabile
  • Bagni: 3
  • Piani dello stabile: 2
  • Superficie: 200 mq
  • Livello: su due livelli
  • Garage: Si
  • Terrazzo: Si
  • Giardino: Si

Planimetrie

Maggiori Informazioni su IO430

Messaggio inoltrato con successo!
Grazie per averci contattato.