vendita casa indipendente su 3 livelli con giardino

vendita casa indipendente su 3 livelli con giardino

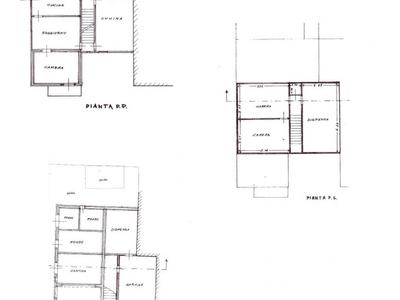
DESCRIZIONE: Casa indipendente di circa 300 mq, disposta su tre livelli e così composta: garage e locale ad uso magazzino a piano terra; appartamento composto da ingresso, cucina, sala da pranzo, salone con camino, ripostiglio, due camere matrimoniali e bagno a piano primo; tre ampie stanze e ripostiglio a piano secondo.
Fanno parte della proprietà ampia cantina, giardino con forno e cubatura da recuperare per un totale di circa 180 mq.
Possibilità di acquistare terreno di 400 mq circa con 100 piante di ulivo distaccati dall’abitazione.

CONDIZIONI: L’appartamento è in buono stato ed è pronto da abitare, mentre le stanze a piano secondo e il piano terra sono completamente da ristrutturare.

UBICAZIONE: L’immobile è situato a circa 10 km da Castiglione del Lago, in posizione tranquilla e panoramica.

120.000,00 €

  • Property ID: IL200
  • Prezzo: 120.000,00 €
  • Regione: Umbria
  • Provincia: Perugia
  • Comune: Castiglione del Lago
  • Zona: vicinanze
  • Tipologia: Vendita
  • Categoria: Ville e Case Indipendenti
  • Camere: 5
  • Stato: Da ristrutturare
  • Bagni: 1
  • Piani dello stabile: 3
  • Superficie: 300 mq
  • Terreno: 600 mq
  • Livello: su tre livelli
  • Garage: Si
  • Giardino: Si

Planimetrie

Maggiori Informazioni su IL200

Messaggio inoltrato con successo!
Grazie per averci contattato.