SP468 - IMMOBILE IN TRATTATIVA

SP468 - IMMOBILE IN TRATTATIVA

Nel suggestivo centro storico di Città della Pieve, proponiamo in vendita un appartamento di 80 mq posto al secondo piano di un palazzo sito sulla via principale del paese.

Descrizione

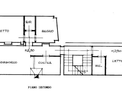
L’appartamento, di circa 80 mq, è composto da ingresso, soggiorno con spaziosa cucina a vista, disimpegno, ampia camera matrimoniale, bagno e comodo ripostiglio.

Sul medesimo pianerottolo, con ingresso autonomo, si trova una seconda camera matrimoniale con bagno, perfetta per garantire privacy a ospiti o per essere gestita in maniera indipendente.

Stato, finiture e potenzialità

Abitabile da subito, con pochi accorgimenti, grazie al doppio ingresso e alla distribuzione intelligente degli spazi, questa proprietà si presta perfettamente sia come comodo pied-à-terre nel cuore dell’Umbria, sia come soluzione ideale per chi desidera inserirla nel circuito degli affitti brevi e delle case vacanze.
La posizione centrale e la vicinanza ai principali servizi, ristoranti e attrazioni culturali la rendono un buon investimento.
Un'opportunità rara in uno dei borghi più autentici e ricercati della regione.

85.000,00 €

  • Property ID: SP468
  • Prezzo: 85.000,00 €
  • Regione: Umbria
  • Provincia: Perugia
  • Comune: Città della Pieve
  • Tipologia: Vendita
  • Categoria: Centri Storici
  • Camere: 2
  • Stato: Buono/Abitabile
  • Bagni: 2
  • Piani dello stabile: 4
  • Superficie: 80 mq
  • Livello: secondo piano

Planimetrie

Maggiori Informazioni su SP468

Messaggio inoltrato con successo!
Grazie per averci contattato.