vendita villa di 1000 mq con terreno e piscina

vendita villa di 1000 mq con terreno e piscina

DESCRIZIONE: Villa indipendente con una superficie totale di circa 1000 mq, disposta su 3 livelli e così composta:
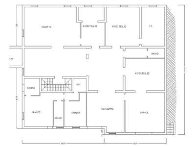
Piano terra: soggiorno, cucina, salotto, sala da pranzo, camera matrimoniale, bagno, vari locali ad uso ripostiglio, garage e centrale termica.
Piano rialzato: ingresso, salotto, cucina, sala da pranzo, tinello, soggiorno, due camere matrimoniali, camera studio, guardaroba e quattro bagni.
Piano primo: Appartamento indipendente con ingresso, soggiorno con angolo cottura, tre camere, disimpegno e due bagni.
Fanno parte della proprietà 16.636 mq complessivi di terreno, di cui 5.680 mq di terreno edificabile con piscina.

CONDIZIONI: L’immobile, in buone condizioni, date le sue caratteristiche si presta ad essere utilizzato sia come dimora principale, sia come struttura turistica ricettiva.

UBICAZIONE: L’immobile è situato in zona residenziale, tranquilla e panoramica dalla quale si gode una bella vista sul Lago Trasimeno e sulle campagne circostanti. Dista circa un km dalla frazione di Sanfatucchio, dotata di tutti i principali servizi e circa 6 km da Castiglione del Lago.

da concordare

  • Property ID: VL181
  • Prezzo: da concordare
  • Regione: Umbria
  • Provincia: Perugia
  • Comune: Castiglione del Lago
  • Zona: Sanfatucchio
  • Tipologia: Vendita
  • Categoria: Ville e Case Indipendenti
  • Camere: 7
  • Stato: Buono/Abitabile
  • Bagni: 7
  • Piscina: Si
  • Piani dello stabile: 3
  • Superficie: 1000 mq
  • Terreno: 1,6636 ha
  • Livello: su tre livelli
  • Garage: Si
  • Terrazzo: Si
  • Giardino: Si

Planimetrie

Maggiori Informazioni su VL181

Messaggio inoltrato con successo!
Grazie per averci contattato.