for sale independent apartment on the ground floor with small garden

for sale independent apartment on the ground floor with small garden

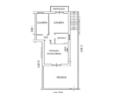
DESCRIPTION: In newly built complex, apartment with independent entrance on the ground floor, about 60 sq.m., consisting of kitchen, double bedroom, single bedroom, storage room and bathroom.
The property includes the garage in the basement, of about 25 sq.m. with cellar of 10 sq.m. and a small private garden.

CONDITION: The property, in perfect condition, is sold with the furniture that are currently inside.

LOCATION: The property is located in a quiet residential area, in the hamlet of Po Bandino, equipped with all services, about 7 kms away from Città della Pieve.

115.000,00 €

  • Property ID: AP828
  • Price: 115.000,00 €
  • Region: Umbria
  • Province: Perugia
  • Municipality: Città della Pieve
  • Zone: Po' Bandino
  • Typology: Sales
  • Category: Apartments on sale
  • Bedrooms: 2
  • State: Good conditions/Ready-to live
  • Bathrooms: 1
  • Number of floors: 2
  • Surface: 60 mq
  • Level: ground floor
  • Garage: Si
  • Balcony: Yes
  • Garden: Yes

Plans

More Information su AP828

Message forwarded successfully!
Thank you for contacting us.