for sale apartment of 75 sqm in the historic centre

for sale apartment of 75 sqm in the historic centre

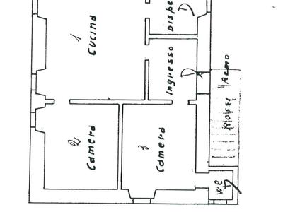
DESCRIPTION: Second floor apartment, 75 sqm, consisting of: hallway, kitchen, living room with wood fireplace and balcony, double bedroom, bathroom and laundry room.
There are two storage rooms on the ground floor.

CONDITION: The apartment is in good condition and it is ready for occupation.

LOCATION: The property is located in the historical center of Piegaro, a typical umbrian town full of history and nature, positioned on a hill at halfway between Città della Pieve and Perugia.

52.000,00 €

  • Property ID: SC264
  • Price: 52.000,00 €
  • Region: Umbria
  • Province: Perugia
  • Municipality: Piegaro
  • Typology: Sales
  • Category: Historic Center
  • Bedrooms: 1
  • State: To be restored
  • Bathrooms: 1
  • Number of floors: 2
  • Surface: 75 mq
  • Level: second floor

Plans

More Information su SC264

Message forwarded successfully!
Thank you for contacting us.